

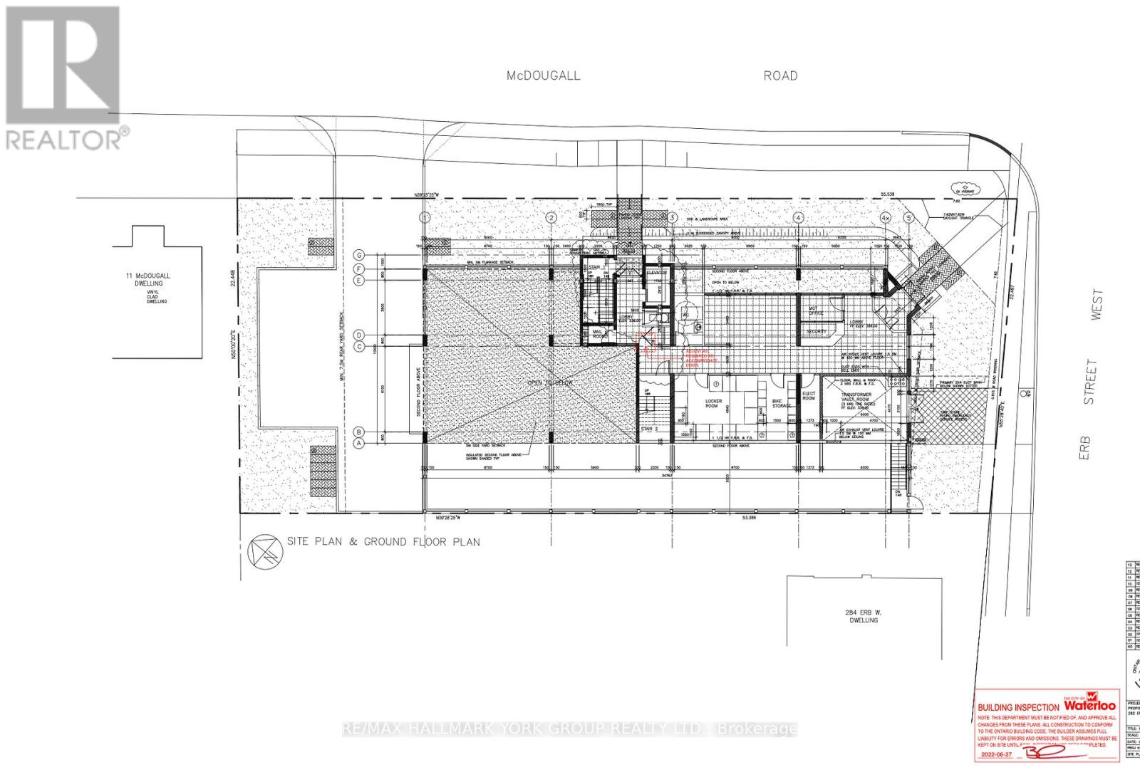
Previously approved site plan for a 35-unit rental/condominium development, zoned RMU-20 (Residential Mixed Use)-a compelling opportunity tailored for small to mid-sized developers targeting a proven, high-demand rental corridor.Positioned just steps from the University of Waterloo and Wilfrid Laurier University, the property is ideally suited for student housing as well as potential senior/retirement-oriented rental concepts. The location offers consistent, year-round rental demand driven by a strong academic and local community base. Walking distance to both campuses, combined with a direct bus stop at the doorstep, ensures exceptional accessibility and enduring tenant appeal.Offered at land value with existing building permits in place (subject to amendment for updated plans), this is a rare, near shovel-ready development opportunity-allowing investors to accelerate timelines and unlock value with minimal upfront entitlement risk. (id:31684)
| 3 weeks ago | Listing updated with changes from the MLS® | |
| 3 weeks ago | Listing first seen on site |
The trademarks MLS®, Multiple Listing Service® and the associated logos are owned by The Canadian Real Estate Association (CREA) and identify the quality of services provided by real estate professionals who are members of CREA. Used under license.
The trademarks REALTOR®, REALTORS®, and the REALTOR® logo are controlled by The Canadian Real Estate Association (CREA) and identify real estate professionals who are members of CREA. These trademarks are owned or controlled by The Canadian Real Estate Association (CREA) and identify real estate professionals who are members of CREA (REALTOR®) and/or the quality of services they provide (MLS®).
This REALTOR.ca listing content is owned and licensed by REALTOR® members of The Canadian Real Estate Association.